By allowing ads to appear on this site, you support the local businesses who, in turn, support local journalism.
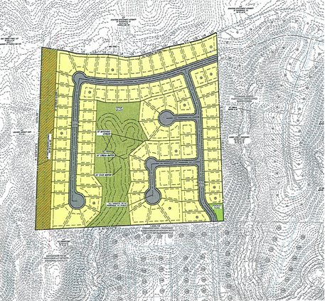
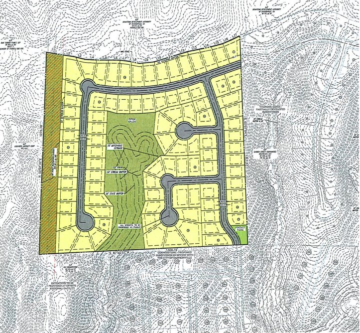
Where 91 homes could be built in south Dawsonville
1210 CITY PLANNING.jpg
Locally-based B&K Turner LLLP wants to rezone 35-plus acres for 91 homes on land just west of the Thunder Ridge development in Dawsonville. Graphic courtesy of Dawsonville Planning Commission.
This project could tie in with an existing neighborhood.
Community Events