BREAKING
Suspect arrested for murder of Dawsonville woman found in woods near downtown Cumming
GBI officials have identified a Dawsonville woman whose body was recently found near downtown Cumming and said a man has been arrested on murder charges in New Jersey in connection with her death.
Full Story
By allowing ads to appear on this site, you support the local businesses who, in turn, support local journalism.
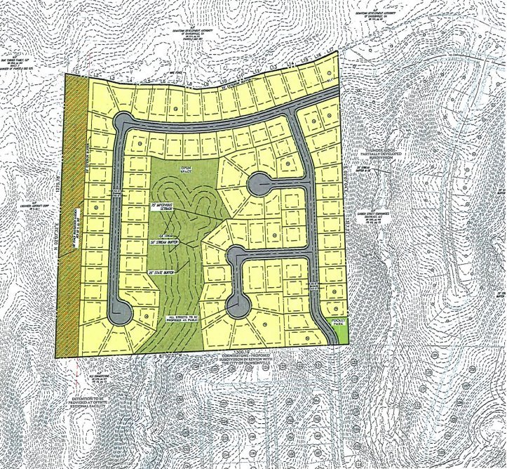
UPDATE: Where 89 homes are planned in south Dawsonville
0127 ZONING
Eighty-nine homes are planned for an effective third phase of the Cornerstone development along Highway 9 in southern Dawsonville. Graphic courtesy of the City of Dawsonville.
The planned homes are one step closer to becoming reality after a recent city council decision.